莱山区城市规划又有新动态啦
近日
烟台自然资源和规划局网站公示了多个项目
其中涉及莱山第二实验小学北侧地块
还不快来看看~
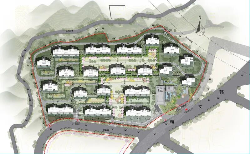
莱山第二实验小学北侧B地块(天青云莱小区)
规划建筑设计方案批前公示
为提高城市规划的透明度,保障广大市民的知情权,参与权和监督权,根据《中华人民共和国城乡规划法》《山东省城乡规划条例》等法律法规有关规定,对该项目进行公示,欢迎广大市民提出意见和建议。
建设单位:烟台招瑞房地产开发有限公司
设计单位:烟台市建筑设计研究股份有限公司
项目名称:莱山第二实验小学北侧B地块(天青云莱小区)
项目位置:莱山区翰文路西侧,莱山区第二实验小学以北。
规划指标:规划总建筑面积133496平方米,其中计容建筑面积76200平方米,地上不计容建筑面积7918平方米,地下建筑面积49378平方米。
公示时间:2026年2月14日—2026年3月2日
公示方式:1、现场公示 2、烟台市自然资源和规划局网站公示
欢迎广大市民提出宝贵意见,请于公示期限内以书面形式送达、邮寄或发送电子邮件至烟台市自然资源和规划局莱山规划管理办公室(请注明“公示反馈意见”,需使用真实姓名及联系方式),我单位将对合理化意见、建议予以采纳,公示期结束后将不予受理。注:绿化景观及构造物仅为示意。
联系电话:0535-6889171(烟台市自然资源和规划局莱山规划管理办公室)
邮箱:lsqghfj@yt.shandong.cn
地址:烟台市莱山区正大隆泰大厦B座18层
邮编:264003


法律支持单位:山东助商律师事务所

鲁公网安备37061302000010号